339.000€
Meters.
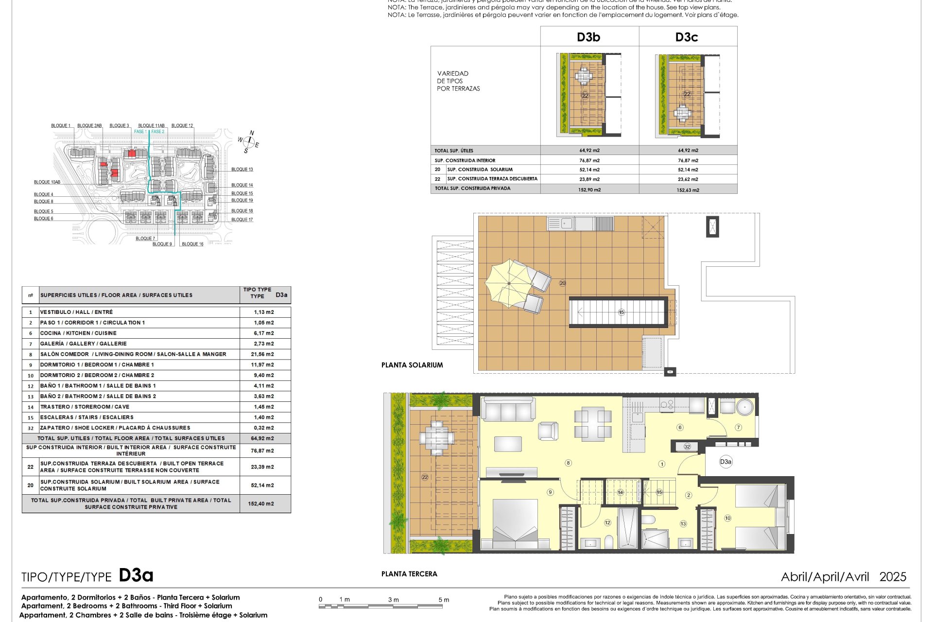
152m2Bed.
2Bath.
2Pool.
YesLuxury apartments with all amenities in Torrevieja
Discover your new home in Torrevieja, where comfort and style come together to offer a unique living experience. This exclusive collection of 151 properties offers a variety of typologies, from apartments to bungalows and penthouses, all designed to maximize comfort and functionality in every space.
With options from 1 to 3 bedrooms and bathrooms, each residence is designed to adapt to your specific needs. Enjoy spacious terraces perfect for relaxing outdoors, ideal for those who appreciate outdoor space in the privacy of their home.
Some residences feature a private pool, allowing you to enjoy the Mediterranean climate in total privacy. Additionally, all properties are delivered fully furnished, ready to move in from day one.
The quality of the interior design is evident in every detail, from built-in wardrobes to underfloor heating. Security and convenience are guaranteed with a communal garage and charging options for electric cars.
Living in this complex means enjoying a wide range of facilities. The community offers a pool, gym, padel court, and playground, ensuring that each day is filled with opportunities for leisure and sport.
The surroundings combine nature and convenience, providing exceptional quality of life. The location is unbeatable, just 3.0 km from the sea and 43.0 km from the airport, offering a strategic position to enjoy both the beach and air connections.
At LAV Real Estate, we are committed to guiding you from start to finish through the process, ensuring that each step is simple and satisfying. With over 20 years of experience on the Costa Blanca, our multilingual team speaks Spanish, English, Swedish, Polish, Lithuanian, Russian, and Norwegian.
Don't miss the opportunity to be part of this exclusive community. Contact us today to discover your new home and start your life in Torrevieja. Living here means enjoying a unique environment where tranquility and leisure go hand in hand.
Make the dream of owning a home in a place where every day is a new opportunity to enjoy the best lifestyle a reality!